17447 S 89th E. Ave., Bixby, OK 74008
17447 S 89th E. Ave., Bixby, OK 74008
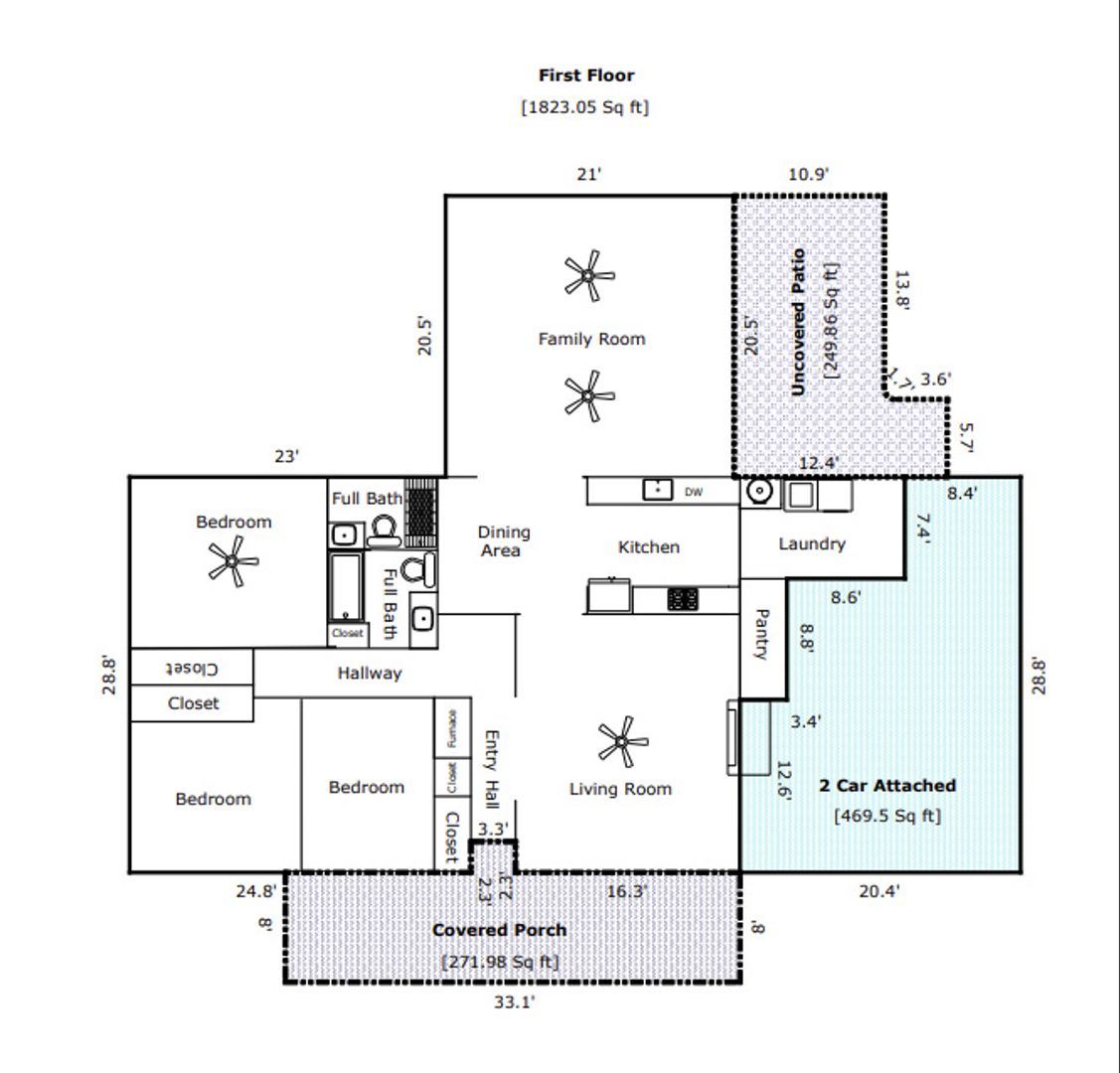
Charming 3-bedroom, 2-bath home in the highly sought-after Bixby School District
Charming 3-bedroom, 2-bath home in the highly sought-after Bixby School District. This well-designed
layout features both a den and a separate living room with a fireplace, offering plenty of space to
relax or entertain. Enjoy a fenced backyard, covered patio, and 2-car garage—perfect for comfortable
everyday living.
$50 Application Fee p/person 18 and older. $20 Monthly Residential Service Agreement Required. Tenants
are required to maintain renter's insurance. Pets okay with restrictions, required pet screening,
owner approval, and pet rent
layout features both a den and a separate living room with a fireplace, offering plenty of space to
relax or entertain. Enjoy a fenced backyard, covered patio, and 2-car garage—perfect for comfortable
everyday living.
$50 Application Fee p/person 18 and older. $20 Monthly Residential Service Agreement Required. Tenants
are required to maintain renter's insurance. Pets okay with restrictions, required pet screening,
owner approval, and pet rent
Contact us:























